Терраса, беседка или веранда — как минимум одна из этих построек всегда есть на даче. Более того, нередко она становится центральным элементом всего участка
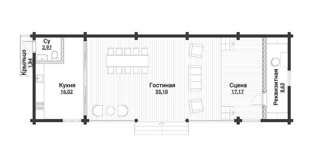
Владельцы этой усадьбы, стоящей на берегу Истринского водохранилища, построили рядом с домом основательный павильон 100 м². На такой площади можно и званые обеды собирать, и развлекаться всей семьей. В беседке возможны практически все тридцать три удовольствия — барбекю, фильмы на свежем воздухе и даже домашние спектакли, которые любят устраивать самые маленькие члены большого семейства.
Павильон построен из клееного бруса. В его центре спланирована терраса, по обеим сторонам от которой находятся изолированные помещения. Слева, за раздвижными остекленными дверьми — большая печь-камин, рядом с ней — лаконичный кухонный гарнитур. Очаг, оформленный натуральным камнем, плавно перетекает в столешницу, так что печь и кухня выглядят как единая конструкция. Справа — за подиумом, играющим роль сцены, дополнительное помещение, в котором юные артисты хранят реквизит.
На массивных потолочных балках также закреплено освещение для сцены и инфракрасные обогреватели (чтобы отдыхающим было комфортно даже в прохладную погоду)









