Параметры дома:
| Материал: | Клееный брус |
| Этажность: | 2 этажа |
| Высота потолков: | 3 м |
| Размер дома: | 17.2 x 17 м |
| Общая площадь: | 396 м2 |
| Отапливаемая площадь: | 383.82 м2 |
| Стоимость: | от 9 696 420 |

Регионы работы:
По всей РоссииКонтакты:
| тел: |
- Планы дома
- Фасады
- Интерьеры
- Комплектация
Тип крыши: Двускатная Покрытие кровли: Гибкая черепица Фундамент: Ленточный Перекрытия: Деревянные Цена, , от: 9 696 420 Срок, мес. от: 6 - Описание
Проект дома № 342. Артикул: DP-136
Добро пожаловать в чудесный мир деревянных домов от компании ООО ПСК «ДревПроектСтрой», («Деревянные дома России»).Строительство домов из кедра, сосны и лиственницы. Собственное производство домов: стоимость клееного бруса с двойной переклейкой.
Внешний вид - важный, но не единственный определяющий признак красивого дома. Необходимо учитывать все свойства и характеристики дома, особенности его внешнего вида и внутреннего содержания, экстерьер, единство формы и содержания. В данном случае красивое должно быть у удобным и комфортным.
Большая площадь остекления, чистые пропорции, отсутствие излишеств в отделке — в этом проекте все продиктовано стремлением создать гармонию между архитектурой дома, ландшафтом и интерьером.
Интерьер в доме из клееного бруса может быть выполнены в любом стилевом направлении, однако чаще всего предпочтение отдается натуральности. Ведь именно из-за этого уникального качества деревянных жилищ их и выбирают: они превосходно держат тепло, ничем не уступают каким-либо другим по долговечности, и при этом в них царит здоровая атмосфера.Хотите, чтобы ваш дом выглядел красиво? У нас есть большой ассортимент элитных материалов для отделки домов.
Обратившись в компанию, вы получите красивый, тёплый и долговечный деревянный дом. Красивые деревянные дома, проекты которых разработаны нашими инженерами, конструкторами и архитекторами, имеют тщательно спланированное внутреннее пространство, созданное под семьи наших заказчиков. Архитектура уникальных деревянных домов тоже создаётся с учётом вкусов и пожеланий наших заказчиков, наряду с особенностями участков, на которых они будут возводиться.
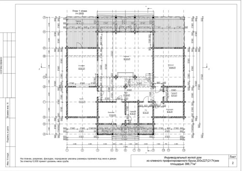
Дом из клееного бруса: 220х227 (217h)мм, площадь 396,71м². Координатные размеры: 17200х17000.
1 этаж 198,68м². Терраса 12,18м², С/у 10,00м², Гардероб 5,20м², Прихожая 9,50м², Холл 23,16м², Спальня 20,96м², Котельная 7,60м², Хоз.помещение 7,60м², Кухня 16,28м², Гостиная 57,92м², Спальня 1
- Отзывы



























