Параметры дома:
| Материал: | SIP-панели |
| Этажность: | 1 этаж |
| Высота потолков: | 2.8 м |
| Помещения: | Терраса |
| Размер дома: | 13 x 8.7 м |
| Общая площадь: | 103 м2 |
| Отапливаемая площадь: | 77 м2 |
| Стоимость: | от 2 500 000 |

Регионы работы:
Свердловская областьКонтакты:
| тел: | |
| email: |
- Планы дома
- Комплектация
Тип крыши: Двускатная Покрытие кровли: Металлочерепица Фундамент: Свайный Перекрытия: Деревянные Утеплитель: Пенополистирол Окна: Пятикамерный профиль Входная дверь: Металлическая с терморазрывом Вентиляция: Естественная Цена, , от: 2 500 000 - Описание
Современные технологии строительства позволяют создавать тёплые, комфортные и энергоэффективные дома за минимальные сроки. Одним из лучших примеров является возведённый дом из СИП панелей (Structural Insulated Panel) в поселке Балтымские Дачи, неподалёку от Екатеринбурга. Этот проект демонстрирует, как можно за разумную цену получить качественное, долговечное и современное жильё с готовым внешним обликом и возможностью персональной доработки под нужды заказчика.Адрес: поселок Балтымские Дачи
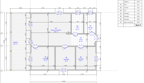
Общая площадь: 103 м²
Площадь террасы: 28,6 м²
Жилая зона: 77 м²Что такое SIP-панели
SIP-панели (Structural Insulated Panels) — это современные строительные сэндвич-панели, состоящие из двух ориентированно-стружечных плит (OSB) с заполнением из жесткого утеплителя (как правило, пенополистирола).
Такой материал обладает высокой прочностью, отличной теплоизоляцией и позволяет возвести дом очень быстро, без усадки.
Ключевые преимущества:
• Энергоэффективность: отличная теплоизоляция — экономия на отоплении;
• Скорость строительства: стены возводятся за считанные дни;
• Экологичность и комфорт: ровный микроклимат без «мостиков холода»;
• Точность геометрии: панели изготавливаются на заводе.Особенности строительства этого дома
Дом в Балтымских Дачах возведён по современной технологии SIP-панелей с утеплителем, с учётом климатических условий Урала.
1. Быстрые сроки возведения
Стены, перекрытия и крыша смонтированы из готовых панелей, что намного ускоряет монтаж:
• фундамент — сваи 89мм монтаж за 1 день;
• сборка стен — за 5–7 дней;
• монтаж кровли — ещё 3-5 дней.
Такой подход особенно выгоден в условиях короткого строительного сезона.
2. Высокие теплосберегающие свойства
Благодаря качественному утеплителю дом удерживает тепло даже при серьёзных морозах. Это важно для Екатеринбурга и окрестностей, где зимы холодные и продолжительные.
Кроме того:
• минимальные теплопотери через стены;
• отсутствие необходимости в толстом наружном утеплении;
- Отзывы














