Этот дом на воде может стать романтическим гнездышком для влюбленной пары, плавучей дачей для семьи или местом отдыха для веселой компании друзей. Варианты его использования безграничны
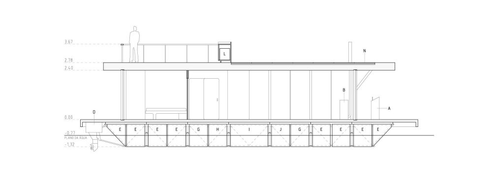
Фиксированная ширина этого удивительного плавучего домика составляет 6 м, а длина варьируется от 10 до 18 м. Продуманная планировка позволяет сделать из него открытую студию с минимумом предметов обстановки или же обустроить полностью меблированное пространство с тремя спальнями, гостиной, кухней и двумя ванными комнатами.
Два мотора, установленные на борту, позволяют наслаждаться природой, путешествуя со скоростью 3 узла (1 морской узел = 1,87 км), и каждый день просыпаться в новом месте.
Полностью оборудованная кухня, тепловой насос и генератор тока, барбекю на верхней террасе, винный погребок, печка на пеллетах и другие удобства гарантируют комфортное времяпровождение вне зависимости от погодных условий.
Заряженный жилой «корабль» полностью автономен и может обеспечивать себя как минимум 7 дней.


Дом на плавучей платформе, обладает свойствами судна, имеет хорошую устойчивость
В доме установлено компактное оборудование по очистке сточных вод
Благодаря модульной конструкции все составные части дома и комплектующие, включая оборудование и мебель, можно сложить в два стандартных контейнера и перевезти в любой уголок планеты



